On April 24, the project of Wenzhou Oujiang Gongyuan Shangcheng invested by WINS and developed by Gemdale Group on a commission basis was published on American Interior Design (Chinese Version). The project has applied the standardized results of the decoration and design of the Group's Green Series 3.0 Marketing Center, and the function, style and atmosphere displayed by the project have been well received by the commissioning party and the industry. The successful landing of the project marks the first application of the standardized results of the decoration and design of the Green Series 3.0 Marketing Center of Gemdale Group, and also opens a new chapter for the external output of the Group's standardized system products. As an important milestone for the development of the agency construction of Gemdale Group, this project has laid a solid foundation for the rapid development of agency construction and provided valuable practical experience for applications of other follow-up projects.

▲The entrance of Oujiang Gongyuan Shangcheng
Oujiang Gongyuan Shangcheng is not only an agency construction project of Gemdale, but also a synchronous and parallel practical project for the product R&D and application of Gemdale Group. Zhu Zheng, chief design officer of Gemdale Group and the Product Management Department of Gemdale Group attached great importance to the quality and effect of the external output results, participated in such key points as product series, the allocation and selection of standards, the decision of project design and the control of design effect, and offered vigorous support of resource information. In July 2018, in cooperation with the project owner, WINS Investment acquired the land. In August, the standardized results of decoration and design of Green Series 3.0 Marketing Center of the group were adopted. In December, the pilot project Wenzhou Oujiang Gongyuan Shangcheng was applied and landed, and the exhibition area was opened. In January 2019, the project was launched for the first time. The whole process from land acquisition to launch lasted for 6 months, with a short cycle and a high efficiency, exactly because the efficiency-improving role of the standardized results of Gemdale Group was applied, and value was also created for the project owner.
The purpose of the R&D of the decoration and design of Green Series 3.0 Marketing Center of Gemdale Group is to establish a standardized control system, systematically promote the competitiveness of the sale office, accelerate the turnover of the project and realize the mass production of high-quality products. The results of R&D design are based on the product positioning of the group. The built-up projects of Green were assessed and the excellent projects were selected from them. At the same time, external high-quality similar projects were used as reference. Professional analysis was conducted to functions, moving lines and decoration. Then, product R&D was carried out in a multi-dimensional way in connection with customer attributes, customer characteristics, social features and product positioning.

▲The stormproof corridor of Oujiang Gongyuan Shangcheng
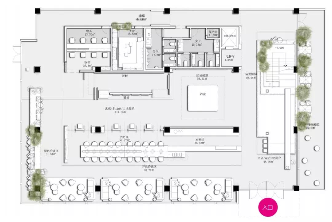
The R&D includes design style, design standard, material allocation and soft-decoration intention. It is divided into different standard modules according to the different functions of the sales office, which are 11 functional modules including visual sense, experience, negotiation, exhibition, VIP area, cashiers’ finance, toilet, outdoors, the area in front of sample apartments, sample apartments and office. The module of each standard functional area is analyzed in such five aspects as floor, ceiling, wall, joint and soft decoration, and finally, the controllability of the interior effect, quality and cost of the project can be realized.

▲The facade of Oujiang Gongyuan Shangcheng
Leading a people-oriented life. Science originates from people and it should serve people all the more. Architecture is not only fashionable and attractive, but also human-oriented. It should have the original spirit of humanistic division, and should be integrated with the city and region. With people as the fundamental yardstick, it should realize everyone's life feeling from physiological to psychological comfort, and it should realize comfortable enjoyment with humanized details. In culture, it should pay attention to human feelings and accord with people's personality and spirit, and promote interpersonal communication and exchange.

▲The night scenery of Oujiang Gongyuan Shangcheng
The following is the content of publication on American Interior Design (Chinese Version)
TIMES ONE IN OUJIANG
“Buy experience, not things.”
A pleasant and varied experience are often more impressive than buying the goods. You may not have the possession of a lovely thing that you cherish, or which makes you feel indispensable into your lives. However, a wonderful experience will become part of your life.

▲Function · Style · Ambience
The ambience of the sales center is a direct impact on customer experience. In recent years, the real estate industry are facing increasingly fierce market competition situation. As traditional sales center with single function are becoming less competitive, it is necessary to think in new ways to break the limitation of the industry. Therefore, we have been exploring upgrade design of the sales center with diversified functions, which offers a new feature from Green series 2.0 to 3.0.

▲Community more than a sales centre
As the Green series 3.0, this project brings alternative experience of livable urban space for customers, which provides people a great place to rest in this hurried lifestyle composite community space. Instead of bringing a feeling of depression or coldness at the most prosperous spot, it creates a relaxed and comfort space where makes you feel like home.

▲cultural floral display area
The design is centred on the cultural floral display area, the art gallery model area and the restaurants & diners area. Each area is made up of several composite spaces. The arrangement of the interior circulation flow connects different areas. People can find a relaxed space in this interactive free ambience and have their own experience and definition.


▲Entrence Installation Stairs


▲Restaurants and Diners
Designers make use of the advantage of space, conceiving a lifestyle that is experiential and changable for young generations. Combined with display, restaurants and diners, meeting room and other composite functions, These spaces constitutes a sales center under the business model, and creates a bookstore, bar, salon and art gallery of contemporary life as well.


▲Meeting Room


The bookstore is the biggest distinctive feature of the space where people can get a good rest on the sofa or take several books on the shelf. The natural light makes the space looks brighter and lively.

▲Art Gallery Model Area
A splendid project should not limited with basic functions. Designers have considered the potential problems on renovation of the sales center, including internal structure of the building, interior space, and decorative style. Therefore we finally present a place where functional transformation and sustainable growth can be achieved.

VIP Room


As a professional investment organization under Gemdale Group, WINS Investment can offer financing service to the project company, fully coordinate the professional agency construction capacity of Gemdale Group, actively develop a number of strategic capital parties, and form the combination and complementation of resources with some small and medium-sized developers through equity cooperation.


